PROJECT CASE STUDY: LYNWOOD GROVE EXTENSION

A Complete Building Services Project Journey

Project Overview:

First floor rear extension with comprehensive building services upgrade including whole roof replacement and extension, all window and door replacement, complete electrical rewiring, full underfloor heating, air conditioning, new plumbing throughout, solar panel installation, insulated external silicone render, full replastering of all internal walls and ceilings, complete thermal improvement to all floors, two new bathrooms, garage conversion to annex, boiler and hot water cylinder relocation, new flooring throughout, full redecoration, and built-in custom wardrobes and alcove units.

1. Planning & Design

Client consultation to understand requirements and vision
Initial consultation with the client to discuss the project scope, practical requirements, preferred layout, and overall design vision. This stage helps establish priorities, budget expectations, and any key features the client would like incorporated into the design.

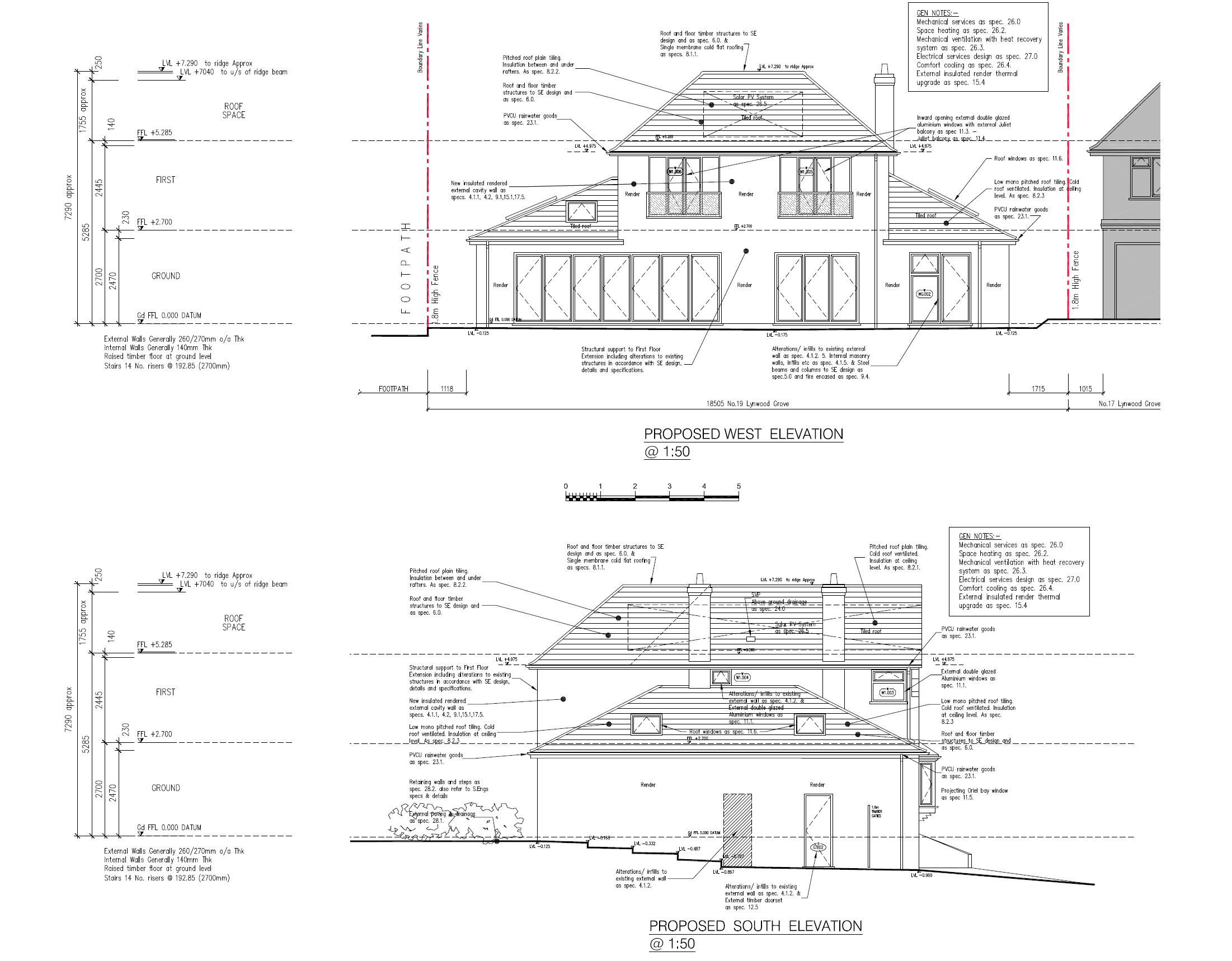
Comprehensive site survey and existing services assessment
Detailed site survey to record the existing property layout, structural elements, access points, and any constraints that may affect the proposed works. Assessment of existing services such as plumbing, heating, electrical supply and drainage to determine how they will integrate with the new design.

Drainage survey and inspection of existing systems
Inspection of the existing drainage system, including foul and surface water drainage where accessible. This may involve identifying pipe routes, existing connections, and assessing whether the current system is adequate for the proposed works or if upgrades will be required.

Structural assessment coordination
Coordination with a structural engineer to review the existing building structure and determine any required structural alterations. This includes preparation of structural calculations and recommendations for elements such as steel beams, load-bearing walls, or foundation adjustments.

Electrical services design and lighting layout
Planning of the electrical installation, including socket locations, switching arrangements, and lighting layout. This ensures the electrical system supports the proposed layout while providing practical and energy-efficient lighting throughout the property.

Underfloor heating system design for ground and first floors
Design and layout of the underfloor heating system for both ground and first floors, including zoning, pipe layout, and connection to the main heating system. The design will consider heat output requirements and floor build-up to ensure efficient performance.

M&E design for heating, ventilation and air conditioning
Development of mechanical and electrical design covering heating systems, ventilation requirements, and any air conditioning elements where applicable. The aim is to ensure the property has an efficient and balanced indoor climate.

Thermal performance evaluation of existing building fabric
Assessment of the current thermal performance of the building envelope, including walls, roof, windows, and insulation levels. This helps identify opportunities to improve energy efficiency and ensure the proposed works comply with relevant standards.

Building Regulations submission and approvals (if required)
Preparation and submission of drawings and supporting documentation required for Building Regulations approval where applicable. This may include coordination with building control and addressing any comments or required revisions during the approval process.

‍2. Demolition and Structural Works

Site scaffold erection, hoarding and protection measures
Erection of scaffolding to the front and/or rear of the property as required to allow safe access to roof and upper structural areas. Installation of temporary hoarding, dust protection, and floor coverings in working areas to protect the property and ensure safe movement of materials and workers throughout the project.

Safe disconnection and removal of existing services
Careful isolation and disconnection of existing electrical, plumbing and heating services within the affected areas before demolition or structural works begin. Any redundant pipework, wiring or fittings will be safely removed to allow new construction works to proceed.

Removal of existing radiators in affected areas
Existing radiators located within the areas being altered will be drained, disconnected and removed where necessary. Pipework will be capped or re-routed depending on the final heating layout.

Careful demolition of existing structures (roof, walls, chimney)
Controlled demolition and removal of existing structural elements where required, including sections of roof structure, internal walls and chimney breast/stack. Works will be carried out carefully to minimise disturbance to the remaining structure and adjoining properties.

Bricking-up external wall opening after chimney stack removal
Following removal of the external chimney stack, the resulting opening in the external wall will be properly closed using matching brickwork and mortar where possible, ensuring the wall remains weatherproof and structurally sound.

Structural openings and steel beam installation where required
Formation of new structural openings where necessary, with supply and installation of steel beams or other structural supports in accordance with structural engineer’s drawings and calculations.

Internal walls partial re-location and reconfiguration
Alteration and partial relocation of internal partition walls to suit the new layout. This may include removal of sections of existing walls, construction of new stud or block partitions, and general reconfiguration to achieve the proposed floor plan.

3. Building an extension and a new roof

Blockwork construction of rear extension
Construction of the new rear extension using suitable blockwork to form the external and structural walls in accordance with the approved drawings. This includes setting out, wall construction, necessary lintels, and integration with the existing building structure.

Roof structure over the existing structure and new extension
Construction of the new roof structure over both the altered existing areas and the newly built extension. This includes installation of roof timbers, structural supports, and preparation for roof coverings in line with structural drawings and building regulations.

Making good and weatherproofing
All newly formed junctions between the existing building and new works will be properly sealed, flashed, and finished to ensure the structure is fully weatherproof. This includes repairing any disturbed surfaces and ensuring the building remains protected from the elements.

Removal of existing windows and doors
Careful removal of existing windows and external doors in areas affected by the works. Openings will be prepared as required for new structural elements or for installation of new glazing and doors in the updated layout.

Extending ground floor bedroom into existing garage space
Conversion of part or all of the existing garage area to enlarge the ground floor bedroom. This includes necessary structural alterations, insulation upgrades where required, and integration of the space into the main house layout.

Creating two new ensuite bathrooms and services for them
Formation of two new ensuite bathrooms, including construction of internal partitions where required and preparation for sanitary fittings. Plumbing and drainage points will be positioned in accordance with the bathroom layouts.

First fix pipework and drainage
Installation of first fix plumbing and drainage pipework for the new bathrooms and any affected areas of the house. This includes routing of water supply, waste pipes, and connections ready for second fix installation of fixtures and fittings.

‍4. Insulation, roof covering and 1st fix internal services

Install new roof covering over the whole house and garage
Removal of the existing roof covering where required and installation of new roof materials across the entire main house and garage roof. This includes necessary underlays, battens, flashings, ridge details and associated roofing components to ensure a durable and weatherproof finish.

Embedded system solar panels installation
Supply and installation of an integrated solar panel system fitted flush within the roof covering rather than mounted above it. The installation will include appropriate mounting systems, electrical connections and integration with the property’s electrical supply.

Air conditioning system installation
Installation of a suitable air conditioning system to provide cooling and improved climate control within the property. This includes internal units, external condenser units, pipework routes and electrical connections as required.

Replacing windows throughout the property
Removal of existing windows and installation of new energy-efficient units throughout the house. This includes making good to reveals and ensuring proper sealing and insulation around the new frames.

Installing new French doors to ground floor bedroom
Formation or adjustment of the opening where required and installation of new French doors providing direct access from the ground floor bedroom to the exterior. This will include appropriate lintels, framing and weatherproof sealing.

Replacing main entrance door to house and garage door
Removal of the existing front entrance door and garage door, followed by installation of new replacement units. The works include adjustments to frames where required and finishing to ensure proper insulation and security.

External wall insulation system to all elevations
Installation of an external wall insulation (EWI) system across all external elevations of the property. This includes fixing insulation boards to the existing walls, reinforcing layers and application of the final protective render finish to improve thermal performance and overall appearance.

Lifting existing floor finishes
Careful removal of existing floor finishes such as tiles, timber flooring, laminate or carpet in areas affected by the works in preparation for insulation and new floor build-up.

Insulating floors throughout
Installation of floor insulation across the relevant areas of the property to improve thermal performance and comfort. This may include insulation boards or other suitable materials installed beneath the new floor finishes.

New fascias, soffits and guttering installation
Removal of existing roofline elements where necessary and installation of new fascias, soffits and rainwater guttering. The new system will ensure proper drainage of rainwater and a clean, finished roofline appearance.

5.Internal and external wall finishes, flooring, 2nd fix services

Base coat, render mesh and silicone render finish to external walls
Application of a full external render system including base coat, reinforcing render mesh, and a final silicone render finish. The system provides durability, weather protection and a clean external appearance, while working together with the external wall insulation where applicable.

Sandwich panels installation to all floors for underfloor heating
Installation of insulated floor panels designed to accommodate underfloor heating pipework. These panels help secure the heating pipes in place while providing thermal insulation and efficient heat distribution throughout the floor structure.

Installing underfloor heating system to all floors throughout
Installation of a wet underfloor heating system across all designated floors of the property. This includes laying heating pipe circuits according to the heating design to ensure consistent and efficient heat distribution in all areas.

Manifolds, pipework and controls installation
Installation of heating manifolds, connecting pipework, and system controls required for the underfloor heating system. Manifolds will distribute heated water to each zone, while thermostats and controls allow independent temperature regulation for different areas.

Integration with existing or new boiler / heat pump system
Connection of the underfloor heating system to the property’s main heat source, whether an existing boiler or a new heating system such as a heat pump. This includes the necessary valves, pumps and controls to ensure safe and efficient operation.

Tiling to all bathroom and ensuite areas (walls and floors)
Supply and installation of wall and floor tiling within all bathroom and ensuite areas. This includes surface preparation, waterproofing where required, tile fixing, grouting and finishing trims.

Wood and tile floor installation throughout
Installation of new floor finishes throughout the property, including timber flooring and tiles where specified. Works include preparation of the floor surface, installation of the flooring materials, and finishing trims where required.

Fitting new door frames, seals, new doors and ironmongery
Installation of new internal door frames and doors throughout the property, including hinges, handles, locks, and other necessary ironmongery. Doors will be fitted with appropriate seals where required.

Architraves, skirting boards and window boards installation
Supply and installation of internal finishing carpentry including architraves around doors, skirting boards along wall perimeters, and window boards where required, providing a neat and complete interior finish.

‍6.Internal wall finishes, 2nd fix electrics, custom joinery

Fitting custom-made wardrobe carcasses
Installation of custom-built wardrobe carcasses designed to fit the allocated spaces within the bedrooms. The carcasses will form the structural framework of the wardrobes and will be securely fixed and levelled in preparation for internal fittings and doors.

Coving installation
Supply and installation of decorative coving along the junction between walls and ceilings where specified. This provides a clean transition and enhances the finished appearance of the rooms.

Priming and painting all internal walls, ceilings and woodwork
Preparation of all internal surfaces including filling, sanding and priming where required, followed by application of paint to walls, ceilings and woodwork throughout the property. Works include multiple coats to achieve an even and durable finish.

All new sockets, light switches, thermostats etc.
Installation of new electrical accessories throughout the property including sockets, light switches, thermostats and other control units as specified in the electrical layout.

Fitting shelves, cabinet lighting, drawers and doors to wardrobes
Installation of internal wardrobe components including shelving, drawer units, hanging rails, and integrated lighting where required. Wardrobe doors will also be fitted and adjusted to ensure proper alignment and smooth operation.

Fitting custom-made cabinets to both new ensuites
Installation of bespoke bathroom cabinetry within the new ensuite bathrooms. This may include vanity units, storage cabinets and associated fittings designed to suit the bathroom layout.

Renovating existing staircase and fitting wooden overlay to the stairs
Refurbishment of the existing staircase including preparation of the existing structure and installation of wooden overlays to the stair treads and risers, providing an updated and more refined appearance.

Adding integrated light strip channel to each step
Formation of recessed channels within the stair design to accommodate LED strip lighting to each step. The lighting will be installed and connected to provide subtle illumination and improved visibility of the staircase.

Conclusion

The scope of works outlined above covers the full refurbishment, structural alterations, extension works, and internal reconfiguration of the property, together with installation of new building systems, finishes and bespoke joinery. The project includes improvements to the building’s thermal performance, modernisation of services, and creation of new living spaces designed to enhance both comfort and functionality.

All works were carried out in accordance with the approved design, structural requirements and applicable building regulations, ensuring the finished result is both structurally sound and aesthetically refined.